









Tivat
1 izbový byt na predaj v Tivate v novostavbe
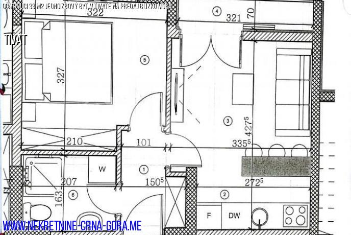
Rozloha je 33 m2. 2.poschodie zo 4.
Vstupná hala 3 m2
Kuchyňa 3 m2
Jedáleň 10 m2
Terasa 3 m2
Spálňa 10 m2
Kúpeľňa 4 m2
400 metrov mora. Všetka potrebná mestská infraštruktúra je v blízkosti.
Je možné dokúpiť garážové státie.
Hľadáte viac možností skutočných bytov v Tivat ? Chcete viac možností nehnuteľností? Vyplňte žiadosť a získajte ponuky, ktoré zodpovedajú vašim kritériám.